Bất Động Sản

Khai Son Duo Penthouse – Tạp chí Kiến trúc Việt Nam

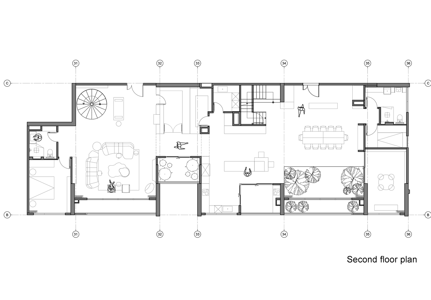
(Văn bản mô tả do KTS cung cấp) Idee Architects đã thiết kế căn hộ áp mái Khai Sơn bằng cách kết hợp hai căn hộ áp mái liền kề thành một không gian sống liên tục dành cho một gia đình trẻ. Dự án tạo ra một hành trình không gian theo chiều dọc, liên kết các khoảng không gian thông tầng, ban công và các khu vực sinh hoạt đa dạng thành một ngôi nhà thống nhất.

Địa điểm: Hà Nội
Kiến trúc sư: Idee architects
Diện tích: 600 m²
Năm: 2025
Ảnh: Wuyhoang Studio

Một trục giao thông trung tâm định hình bố cục, chia căn penthouse thành hai phần: các khu chức năng chính ở một bên và các khu vực bổ sung ở phía còn lại với tầm nhìn bao quát thành phố. Ở cả hai đầu, một cầu thang thẳng và một cầu thang xoắn ốc mang tính điêu khắc kết nối hai tầng, cho phép di chuyển thông suốt khắp căn hộ.

Hai không gian thông tầng lớn với trần nhà cao gấp đôi phục vụ hai mục đích khác nhau: một không gian trở thành phòng khách rộng rãi, không gian còn lại là khu vườn trong nhà trải dài từ khu vực ăn uống và nhà bếp đến các phòng ngủ riêng. Sự liên tục theo chiều dọc được nhấn mạnh thông qua các hình khối tuyến tính trong phòng khách và những cây cao trong vườn, tạo ra một bầu không khí mở, vui tươi và tràn ngập ánh sáng cho cả trẻ em và các thành viên trong gia đình.

Thiết kế mang ngôn ngữ kiến ​​trúc hiện đại với những đường nét mạnh mẽ, gọn gàng. Bề mặt đá travertine thô ráp tương phản với các yếu tố kim loại, tạo nên sự cân bằng giữa kết cấu thô mộc và chi tiết tinh tế. Căn hộ áp mái Khai Sơn thể hiện sự cởi mở, sáng tạo và ấm áp – một không gian sống cao cấp tôn vinh cả chiều cao và cuộc sống gia đình.

PV/archdaily



Nguồn